Обяви 0 За нас Контакти
Продава ПАРЦЕЛ
град София, с. Лозен
2 900 000 €
5 671 907.00 лв.

(468 €, 915.33 лв./m2)
Цената е с включено ДДС
История на цената
Коригирана в 12:46 на 8 февруари, 2026 год.
Обявата е посетена 1587 пъти.
Площ:
6199 m2
Регулация:
ДА

Описание на имота:


🏗️ Парцел за инвестиция с проект зона Смф2

Предлага се урегулиран поземлен имот с площ 6 199 кв.м, разположен в с. Лозен, район Панчарево, м. Ефенди мост , в непосредствена близост до Околовръстен път София.

📍 Параметри на имота (съгласно устройствената зона Смф2):
Плътност на застрояване: 40 60%
КИНТ: 1.2
Минимална озеленена площ: 40 30%
Кота корниз: 10 м

📍 Предимства и възможности:
Зона Смф2 (смесена многофункционална зона) позволява жилищно, търговско, офисно или комбинирано застрояване;
Изготвен идеен проект с предвидено застрояване:
Ритейл парк с общо 3 135 кв.м РЗП
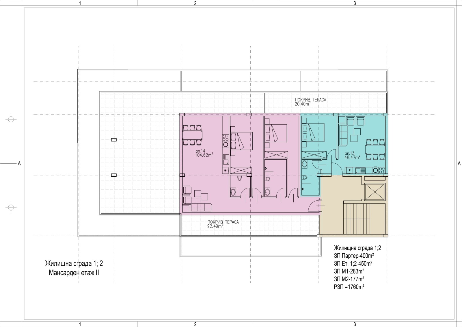
Жилищни сгради:
Сграда 1 1 760 кв.м РЗП
Сграда 2 1 760 кв.м РЗП
Сграда 3 736 кв.м РЗП
Общо РЗП: 7 391 кв.м
Разработени архитектурни разпределения с оптимална комбинация от апартаменти (от 50 до 145 кв.м), включително пентхауси с големи тераси;
Концепция за Lozen Retail Park с модерна визия, паркоместа и озеленяване;
Отлична транспортна достъпност бърза връзка към Цариградско шосе и АМ Тракия , в близост до нови жилищни и смесени комплекси.

📍 Инвестиционен потенциал:
Подходящ както за жилищно строителство, така и за търговски площи, офиси или комбиниран проект;
Атрактивна локация с бързоразвиваща се среда;
Възможност за поетапна реализация отделни жилищни сгради или търговска част.

✅ Имотът е идеален за строителни предприемачи и инвеститори, търсещи възможност за проект с висока възвръщаемост в зона с перспективно развитие.

За допълнителна информация и въпроси, обадете се на:

Димитър Кулов, тел: 0878 501 233, или изпратете запитване на имейл: кulov@delta3.bg
Особености
За жил.строителство
За контакт:
0878501233
Брокер:
Димитър Кулов
0878501233
Още оферти от брокера: Продава | Дава под наем | Купува | Наема
Агенция:
ДЕЛТА 3 РИЪЛ ЕСТЕЙТ ТМ ООД
02/4262299
ДЕЛТА 3 РИЪЛ ЕСТЕЙТ ТМ ООД logo
Медал за прослужено време
В imot.bg от 2011 г.
delta3estate.imot.bg
Адрес:
област София, гр. София, София, ул.Юрий Венелин 44, ет.3 ап.5
http://www.delta3.bg
ИЗПРАТИ ЗАПИТВАНЕ
ИЗПРАТИ ЗАПИТВАНЕТО

Продава ПАРЦЕЛ
град София, с. Лозен
Обява: 1r175917018286535

2 900 000 €
5 671 907.00 лв.
История на цената
(468 €, 915.33 лв./m2)

Цената е с включено ДДС
ЗАПАЗИ ОБЯВАТА

Местоположение: град София, с. Лозен

Допълнителни данни за имотите в района и сравнение с други райони

Покажи

Период

и 5 месеца

* Средните цени са определени чрез медианна стойност